H MART Irvine Northpark
Sales Area + Food Court

H Mart provides an extensive selection of Asian foods alongside a diverse range of Western groceries, enhancing its comprehensive offerings akin to those of a conventional supermarket. Moreover, H Mart's reputation is built on its inventive food halls, which stem from a legacy of more than three decades in the Asian food industry.

INTERIOR / ENVIRONMENTAL DESIGN Hyungoo Kang, Brad Bang
CREATIVE DIRECTION Elizabeth Kwon, Hyungoo Kang
3D Brad Bang
ARCHITECTURE DESIGN Sukjune Choi
FABRICATION Sukjune Choi, Chanhee Park, Jhon Garcia
PHOTOGRAPHY Gayoung Bae, Youngwoo Lee

© 2022 H Studio, All Rights Reserved.

#1

SALES AREA

Planning

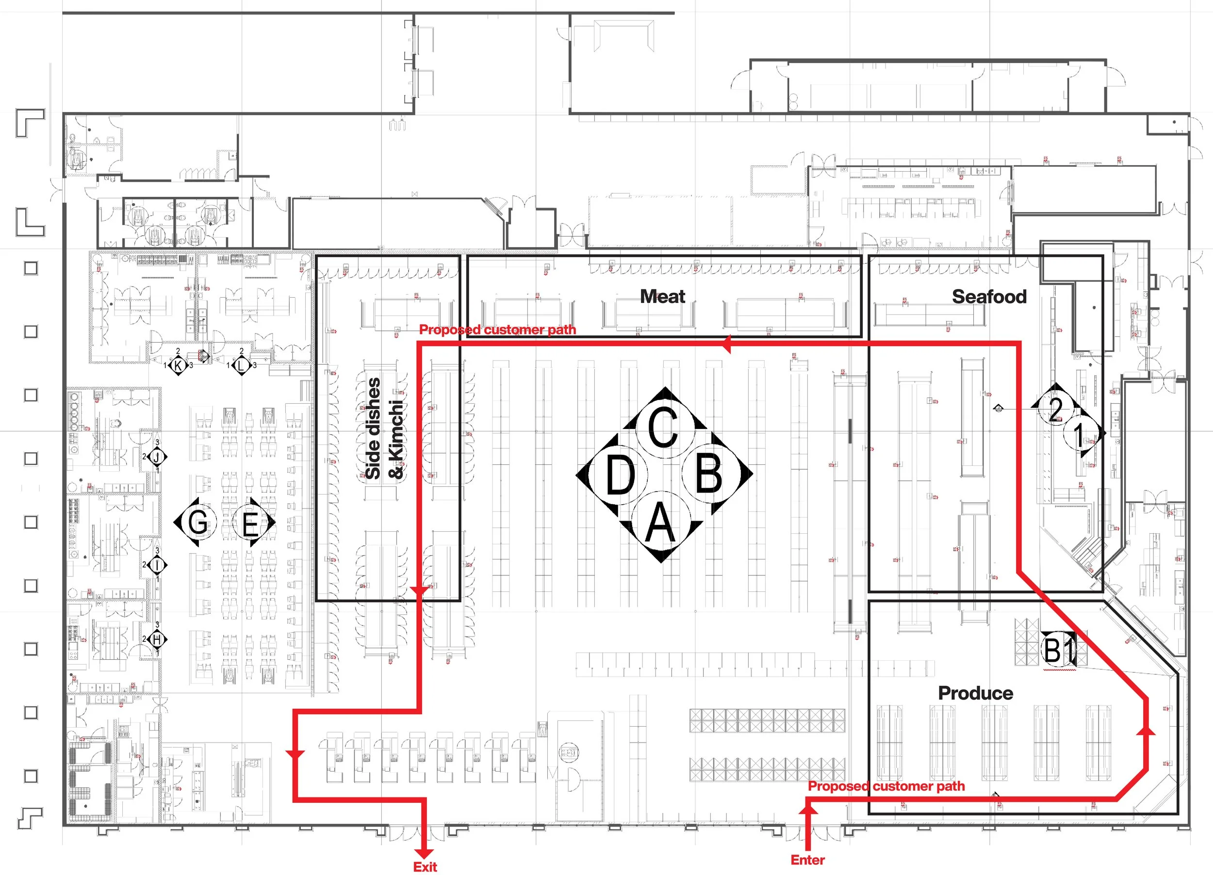
When creating the sales graphics, careful consideration was given to three vital aspects.

Firstly, design consistency played a crucial role, ensuring that the graphics maintained a unified design identity aligned with H Mart's brand. This harmony in design is pivotal in reinforcing H Mart's brand message and effectively communicating it to the customers.

Secondly, understanding the expected path customers would take within the store allowed for the seamless integration of graphics, facilitating a fluid and natural progression as customers navigated through the space.

Lastly, the graphics were strategically designed to suggest an atmosphere that would actively engage customers, ultimately enticing them to make purchases and enhancing their overall shopping experience.

Materials

Selecting the right materials was crucial for the store design. When customers enter, they're greeted by the lively produce section adorned with light-colored hickory wood planks, creating a welcoming atmosphere for picking fresh produce.

In the meat section, we went for a rustic, vintage feel by installing weathered reclaimed wood planks vertically. This design perfectly complements the different meat products available, creating an environment in sync with what's offered.

Meanwhile, the seafood section features brushed corrugated metal panels, not only fitting an industrial, rustic look but also guiding customers seamlessly from the meat section to maintain a consistent and appealing design.

One of H Mart's strengths is the Banchan and Kimchi section, renowned for its freshness. To enhance this, we opted for white tiles and added simple, monochrome graphics resembling Korean Ink paintings. The design aimed for a minimal and Asian aesthetic, creating a clean and distinctly Korean atmosphere in line with the products offered.

#2

MARKET EATERY
FOOD HALL

In an era where Korean culture and its culinary delights are captivating the public's attention,H Mart has seized the opportunity to expand its presence nationwide. This expansion isn't solely about providing customers with fresh raw ingredients; it's also about allowing them to savor freshly cooked Korean cuisine as they depart, reflecting the growing interest in Korean food and culture.

Planning

Strategically positioning the food court area near the exit has proven effective in naturally captivating customers, enticing them to visit after an energetic shopping spree. This deliberate placement mirrors the concept of a 'Rest Area' within the store, akin to the approach employed by IKEA, enhancing the overall shopping experience and encouraging customers to enjoy a meal before concluding their shopping journey.

In planning the design, the main goal was to mirror the lively vibe of a Korean market or plaza, steering away from a high-end design approach. The emphasis was on creating a local, friendly atmosphere that's easy to connect with. The design aimed to invite customers in a casual way, tempting them to explore the delightful range of Korean cuisine being prepared within the space. Additionally, a considerable focus was placed on ensuring each tenant had a unique identity while maintaining an overall visual theme that embodies Korean culture. It was a delicate balance, allowing tenants to have their distinctiveness while contributing to an crucial Korean ambiance. Considering the lively setting of H Mart, the design strived for a bold and striking presence. It aimed to seamlessly blend into the dynamic environment, grabbing attention and establishing an appealing and prominent presence. This emphasis on visual impact was crucial in aligning the design with the lively atmosphere of the bustling marketplace.

Extensive research and collaborative mood boarding sessions with teammates played a pivotal role in guiding our decisions regarding interior materials and signage direction.

3D Modeling

In this project, I applied my newly acquired Blender skills to optimize the design of interior spaces. By using floor plans and elevation drawings, I created a detailed 1:1 3D model of the food court. I then integrated both structural and non-structural design elements into this digital representation.

This approach greatly streamlined communication among the design, interior, and fabrication teams, enhancing their understanding of the proposed structure and materials for the project.

Fabrication

To bring the finalized design to life, precise and effective communication with the production team is absolutely essential. Understanding the properties of the materials used in production is just the beginning; there are countless factors to consider, from manufacturing and transportation to the installation process on site.

Thank you!

Previous
Previous

H MART Smart Card Design

Next
Next

2023 KOSTA/USA: FOLLOWERS